Negozio in vendita

Agliana, Via Spartaco Lavagnini
€ 250.000
2 locali 2 locali
150 Mq 150 Mq
1 bagno 1 bagno

Negozio in vendita

Agliana, Via Spartaco Lavagnini

Descrizione annuncio

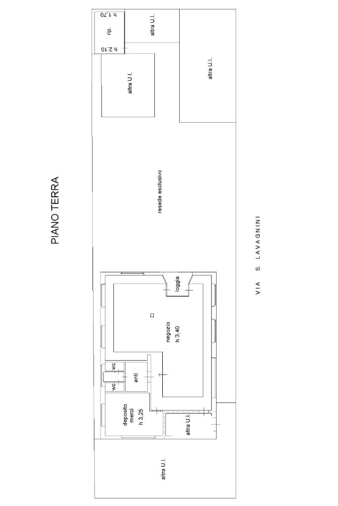
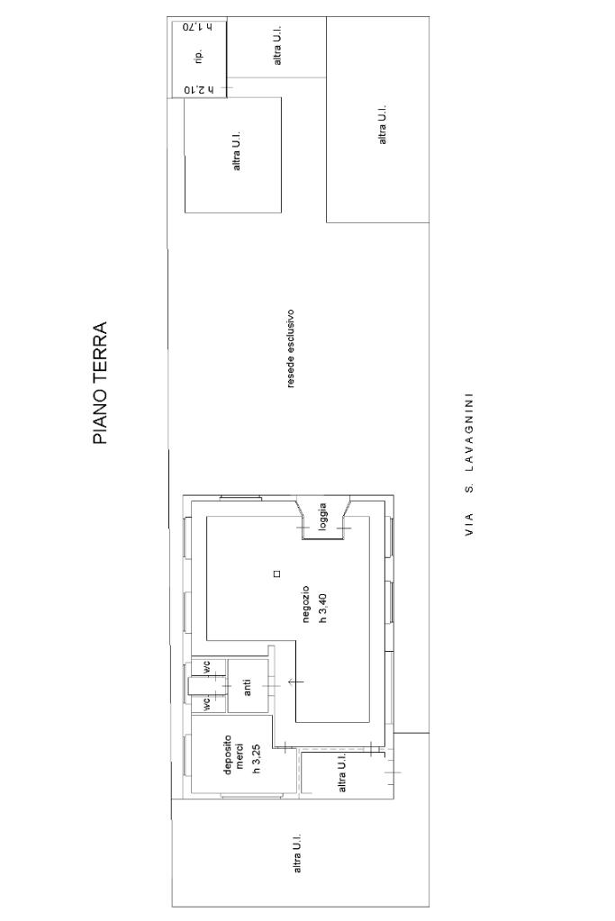
INVESTIMENTO: Proponiamo in vendita un immobile commerciale di circa 150 mq con 250 mq di piazzale esclusivo, situato nella zona di Agliana.

L’immobile, in posizione angolare è dotato di ben cinque ampie vetrine, gode di una visibilità ottimale grazie alla sua ubicazione strategica. L’interno è composto da una spaziosa sala principale adibita a showroom, da una parte di uffici e un servizio igienico.

Attualmente locato ad un rivenditore d'auto, vanta un portafoglio clienti consolidato avendo rilevato due anni fa l'attività precedente. Il conduttore corrisponde un canone di locazione annuo di 20.400 euro.

Per maggiori informazioni puoi contattarci al numero 3208306024 oppure 3277629684.

DISCLAIMER

Il presente annuncio e le informazioni ivi contenute non costituiscono vincolo contrattuale. Gli annunci, nonostante la nostra accuratezza, possono presentare inesattezze, errori, omissioni e/o altre incongruenze dovute a software, gestionali, intelligenza artificiale e altre dinamiche di inserimento e lettura dati. Le fotografie potrebbero essere immagini di repertorio, modificate dall'intelligenza artificiale o non rappresentative della realtà.

Mostra tutto

Nelle vicinanze

Trasporto pubblico Trasporto pubblico
Montale Agliana
Montale Agliana
910 m
Lavagnini 90
Lavagnini 90
60 m
Provinciale 207
Provinciale 207
150 m
Ricariche auto elettriche Ricariche auto elettriche
COOP CENTRO Agliana | EnelX fast
1,5 Km
Scuole Scuole
Scuole
460 m
Anna Frank
1,1 Km
Farmacia Farmacia
Farmacia
590 m
Farmacia La Stazione
890 m
Supermercati Supermercati
Conad
560 m
Supermercati
1,5 Km
Coop
1,5 Km
COOP
2,4 Km
Penny
2,5 Km
Negozi Negozi
Panificio fratelli Mastrella
1,8 Km
Bar Bar
Bar
580 m
Gallo Nero
760 m
La Casita
1,8 Km
Il Malandrino
1,9 Km
Ristoranti Ristoranti
Fidolio
580 m
Filodolio - La Tripperia
580 m
Rosticceria Amici per la gola
840 m
Lago Primo Maggio
1,3 Km
Bierplatz
1,5 Km
Mostra tutto

Caratteristiche

Rif.:
61131761
Piano:
Terra di 2
Totale piani:
2
Posti auto:
10
Condizionamento:
Autonomo
Ascensore:
No
Mostra tutto
Prezzo Prezzo
€ 250.000
Rata mutuo Rata mutuo
€ 1.179 / mese
Spese annue Spese annue
€ 0
Proponi il tuo prezzoProponi il tuo prezzo

Altre caratteristiche

Descrizione dei locali
Bagno Con Finestra

Classe Energetica

G
G
G
G
G
G
G
G
G
EP globale non rinnovabile:
175.00 kW h/m² anno
EP globale rinnovabile:
175.00 kW h/m² anno
EP invernale del fabbricato:
EP estiva del fabbricato:
Anno di costruzione:
1950
Riscaldamento:
Autonomo
Tipo impianto:
Ad aria
Tipo alimentazione:
Aria

Ti interessa visionare l'immobile?

Fissa un appuntamento  Fissa un appuntamento

Richiedi informazioni

Clicca su Leggi per aprire l'informativa
* Questi campi sono obbligatori

Calcola il tuo mutuo

Semplice e senza impegno
Anticipo

( % )
Mutuo

( % )

pochi semplici passi

inserisci i tuoi dati
Questionario completato
Grazie per aver richiesto un appuntamento senza impegno con un nostro Consulente del Credito e Assicurativo.

Hai inserito correttamente tutti i dati necessari e a breve riceverai una e-mail con un link da convalidare per inviare i tuoi dati.
Affiliato
Industriale Prato Srl
Via Giuseppe Catani, 39/A 59100 Prato (PO)

Il nostro staff


  • Alessio Palmieri
    Affiliato

  • Giuseppe Biscotti
    Affiliato
Via Giuseppe Catani, 39/A 59100 Prato (PO)
Zona: Prato
Mostra su mappa
Orari: Orari: Da lunedì a venerdì 9:00 - 13:00 / 15:00 - 20:00; sabato 9:00 - 13:00 / 15:00 - 18:00
Affiliato
Industriale Prato Srl
Via Giuseppe Catani, 39/A 59100 Prato (PO)

2025 Tecnocasa Franchising S.p.A. - P. IVA 08365160152 - Via Monte Bianco 60/A 20089 Rozzano (MI). Ogni agenzia ha un proprio titolare ed è autonoma. Privacy policy | Policy utilizzo | Cookie policy