Laboratorio in affitto

Quarrata, Via Statale Fiorentina - Barba Ferruccia Vignole Casini Catena
€ 4.600 / mese
2 locali 2 locali
850 Mq 850 Mq
2 bagni 2 bagni

Laboratorio in affitto

Quarrata, Via Statale Fiorentina - Barba Ferruccia Vignole Casini Catena

Descrizione annuncio

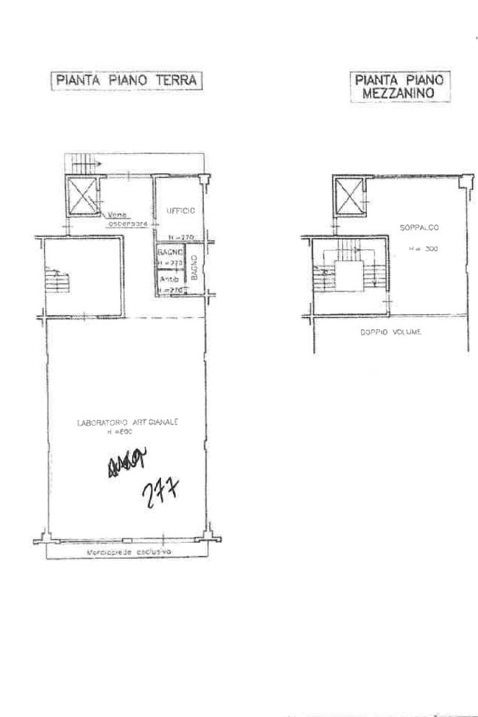
In vendita ampio immobile artigianale di 850 mq da rifinire, situato all’interno di un complesso ben curato posto su una delle principali vie di Quarrata. La proprietà si distingue per la grande luminosità e la versatilità degli spazi, ideali per diverse tipologie di attività artigianali, produttive o di deposito. La posizione è strategica e facilmente raggiungibile, con visibilità e comodi accessi per mezzi di lavoro. Completano la proprietà posti auto privati situati all’interno dell’area di pertinenza, se richiesti, rendendo l’immobile una soluzione ideale per chi necessita di ampi spazi funzionali in una zona ben servita.

Mostra tutto

Nelle vicinanze

Trasporto pubblico Trasporto pubblico
Trasporto pubblico
1,8 Km
Scuole Scuole
Scuole
1,5 Km
Farmacia Farmacia
Farmacia Chilleri
2,8 Km
Supermercati Supermercati
Pam
30 m
Coop
2,5 Km
EuroSpin
2,6 Km
Negozi Negozi
melanishop
140 m
Panificio fratelli Mastrella
2,8 Km
Ristoranti Ristoranti
Ristorante Pizzeria Pinko
160 m
Ristorante Lago Giardino
1,2 Km
Ristoranti
2,1 Km
C'est la vie
2,2 Km
da Giaomino
2,6 Km
Mostra tutto

Caratteristiche

Rif.:
61136875
Piano:
Terra di 1
Totale piani:
1
Condizionamento:
Assente
Ascensore:
No
Riscaldamento:
Assente
Mostra tutto
Prezzo Prezzo
€ 4.600 / mese
Spese annue Spese annue
€ 0

Classe Energetica

G
G
G
G
G
G
G
G
G
EP globale non rinnovabile:
174.35 kW h/m² anno
EP globale rinnovabile:
56.20 kW h/m² anno
EP invernale del fabbricato:
EP estiva del fabbricato:
Anno di costruzione:
1990
Riscaldamento:
Assente

Ti interessa visionare l'immobile?

Fissa un appuntamento  Fissa un appuntamento

Richiedi informazioni

Clicca su Leggi per aprire l'informativa
* Questi campi sono obbligatori
Affiliato
Industriale Prato Srl
Via Giuseppe Catani, 39/A 59100 Prato (PO)

Il nostro staff


  • Alessio Palmieri
    Affiliato

  • Giuseppe Biscotti
    Affiliato
Via Giuseppe Catani, 39/A 59100 Prato (PO)
Zona: Prato
Mostra su mappa
Orari: Orari: Da lunedì a venerdì 9:00 - 13:00 / 15:00 - 20:00; sabato 9:00 - 13:00 / 15:00 - 18:00
Affiliato
Industriale Prato Srl
Via Giuseppe Catani, 39/A 59100 Prato (PO)

2025 Tecnocasa Franchising S.p.A. - P. IVA 08365160152 - Via Monte Bianco 60/A 20089 Rozzano (MI). Ogni agenzia ha un proprio titolare ed è autonoma. Privacy policy | Policy utilizzo | Cookie policy