Laboratorio in affitto

Quarrata, Via Statale - Barba Ferruccia Vignole Casini Catena
€ 9.500 / mese
3 locali 3 locali
2200 Mq 2200 Mq
3 bagni 3 bagni

Laboratorio in affitto

Quarrata, Via Statale - Barba Ferruccia Vignole Casini Catena

Descrizione annuncio

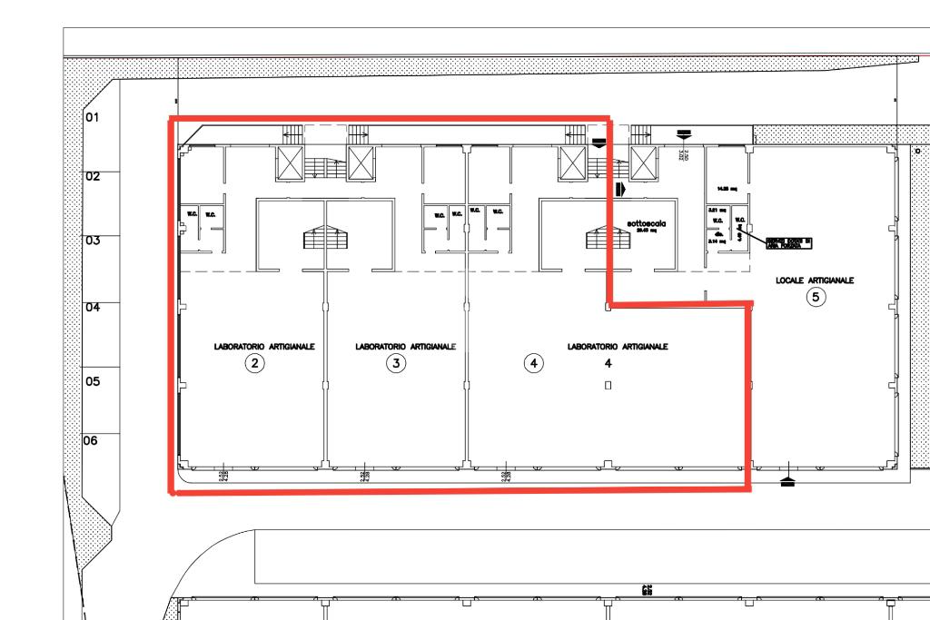
In via Statale, nella zona di Sant’Antonio a Quarrata, proponiamo in locazione un ampio laboratorio artigianale sviluppato su due piani speculari, ciascuno di circa 1.100 mq, per una superficie complessiva di 2.200 mq, corredato da un grande piazzale privato di circa 3.000 mq.

Al piano terra l’immobile si presenta attualmente suddiviso in tre ampi ambienti operativi, ognuno dotato di area uffici e servizi dedicati. Completano il livello un soppalco nella parte posteriore e uno spazio predisposto per l’installazione di un montacarichi con collegamento al piano superiore. L’altezza interna è di circa 6 metri, ideale per lavorazioni artigianali e attività produttive.

Il primo piano (secondo fuori terra) è caratterizzato da un ampio open space di 1.100 mq, con copertura a campate e altezza minima di 3,6 metri. L’accesso avviene tramite scale interne ed esterne, oltre a tre vani predisposti per montacarichi.

Sul retro dell’edificio sono presenti tre banchine di carico, che rendono particolarmente agevoli le operazioni logistiche. Vi è inoltre la possibilità di installare uno o più portoni carrabili al posto degli ingressi attualmente esistenti.

La proprietà è completata da un ampio piazzale privato di circa 3.000 mq, facilmente accessibile anche da mezzi pesanti tramite strada privata, ideale come area di manovra, carico/scarico e parcheggio. Soluzione adatta a molteplici attività artigianali, produttive o di logistica.

DISCLAIMER

Il presente annuncio e le informazioni ivi contenute non costituiscono vincolo contrattuale. Gli annunci, nonostante la nostra accuratezza, possono presentare inesattezze, errori, omissioni e/o altre incongruenze dovute a software, gestionali, intelligenza artificiale e altre dinamiche di inserimento e lettura dati. Le fotografie potrebbero essere immagini di repertorio, modificate dall'intelligenza artificiale o non rappresentative della realtà.

Mostra tutto

Nelle vicinanze

Trasporto pubblico Trasporto pubblico
Trasporto pubblico
1,8 Km
Scuole Scuole
Scuole
1,5 Km
Farmacia Farmacia
Farmacia Chilleri
2,8 Km
Supermercati Supermercati
Pam
80 m
Coop
2,6 Km
EuroSpin
2,7 Km
Negozi Negozi
melanishop
180 m
Panificio fratelli Mastrella
2,8 Km
Ristoranti Ristoranti
Ristorante Pizzeria Pinko
190 m
Ristorante Lago Giardino
1,2 Km
Ristoranti
2,1 Km
C'est la vie
2,1 Km
da Giaomino
2,6 Km
Mostra tutto

Caratteristiche

Rif.:
61192813
Piano:
1 di 2 (Piano su più livelli)
Posti auto:
50
Condizionamento:
Assente
Ascensore:
No
Riscaldamento:
Assente
Mostra tutto
Prezzo Prezzo
€ 9.500 / mese
Spese annue Spese annue
€ 100

Altre caratteristiche

Descrizione dei locali
Bagno Con Finestra

Classe Energetica

G
G
G
G
G
G
G
G
G
EP globale non rinnovabile:
175.00 kW h/m² anno
EP globale rinnovabile:
175.00 kW h/m² anno
EP invernale del fabbricato:
EP estiva del fabbricato:
Anno di costruzione:
1950
Riscaldamento:
Assente

Ti interessa visionare l'immobile?

Fissa un appuntamento  Fissa un appuntamento

Richiedi informazioni

Clicca su Leggi per aprire l'informativa
* Questi campi sono obbligatori
Affiliato
Impresa Prato Est Srl
Via Giuseppe Catani, 39/A 59100 Prato (PO)
Via Giuseppe Catani, 39/A 59100 Prato (PO)
Zona: Prato
Mostra su mappa
Orari: Orari: Da lunedì a venerdì 9:00 - 13:00 / 15:00 - 20:00; sabato 9:00 - 13:00 / 15:00 - 18:00
Affiliato
Impresa Prato Est Srl
Via Giuseppe Catani, 39/A 59100 Prato (PO)

2026 Tecnocasa Franchising S.p.A. - P. IVA 08365160152 - Via Monte Bianco 60/A 20089 Rozzano (MI). Ogni agenzia ha un proprio titolare ed è autonoma. Privacy policy | Policy utilizzo | Cookie policy